WeWork, Hamburg
Bauvorhaben:
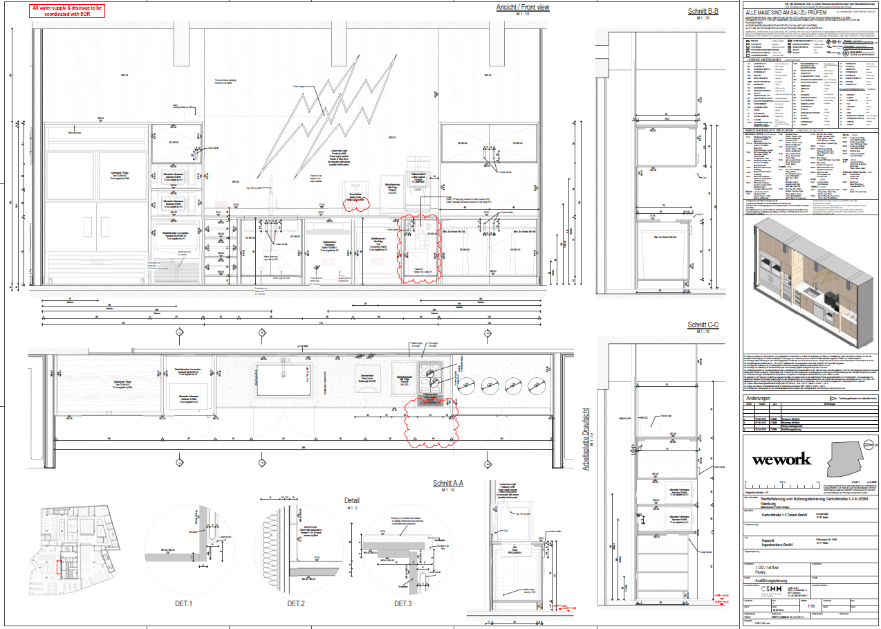
WeWork Hamburg
Bauherr: WeWork
Architekt und Auftraggeber: CSMM GmbH
unsere Leistungen für LPH 3-5:
Bauherr: WeWork
Architekt und Auftraggeber: CSMM GmbH
unsere Leistungen für LPH 3-5:
- Projektorganisation in BIM360 Autodesk-Cloud
- Modellieren des Bestandsmodells mit Autodesk-Revit nach Punktwolke
- Umsetzung der Planung im 3D-Revit-Modell
- Ableitung von 2D-Plänen aus dem 3D-Modell
- Interner Support bei Fragestellungen und Problemlösungen
- Sicherung der Planungsqualität und Datenqualität
- Überprüfung von Planungsergebnissen durch Kollisionskontrolle

WeWork
ist ein US-amerikanisches Unternehmen, das gemeinsam genutzte Arbeitsbereiche für Communities im Bereich Technologie-Start-Subkulturen und Dienstleistungen für Unternehmer, Freiberufler, Start-ups, kleine Unternehmen und große Unternehmen anbietet. Das 2010 gegründete Unternehmen hat seinen Hauptsitz in New York City. Im Juli 2017 hatte WeWork einen Wert von rund 20 Milliarden US-Dollar und verwaltete Büroflächen von 10.000.000 Quadratfuß (930.000 m2).
WeWork entwirft und baut physische und virtuelle Gemeinschaftsräume und Büroservices für Unternehmer und Unternehmen. Die über 100.000 Mitglieder des Unternehmens haben Zugang zu einer Krankenversicherung, einem internen sozialen Netzwerk, gesellschaftlichen Veranstaltungen und Workshops sowie einem jährlichen Sommerurlaub. WeWork beschäftigt über 5.000 Mitarbeiter an über 280 Standorten in 77 Städten in 23 Ländern, darunter Australien, Argentinien, Brasilien, Kanada, China, Kolumbien, Frankreich, Deutschland, Hongkong, Irland, Indien, Israel, Japan, Mexiko, Niederlande, Peru, Singapur, Südkorea, Spanien und Vereinigtes Königreich.
Coworking ist eine Entwicklung im Bereich „neue Arbeitsformen“. Freiberufler, Kreative, kleinere Startups oder digitale Nomaden arbeiten dabei zugleich in meist größeren, offenen Räumen und können auf diese Weise voneinander profitieren. Sie können unabhängig voneinander agieren und in unterschiedlichen Firmen und Projekten aktiv sein, oder auch gemeinsam Projekte verwirklichen und Hilfe sowie neue Mitstreiter finden.
„Coworking Spaces“ stellen Arbeitsplätze und Infrastruktur (Netzwerk, Drucker, Scanner, Fax, Telefon, Beamer, Besprechungsräume) zeitlich befristet zur Verfügung und ermöglichen die Bildung einer Gemeinschaft („Community“), welche mittels gemeinsamer Veranstaltungen, Workshops und weiterer Aktivitäten gestärkt werden kann. Dabei bleibt die Nutzung jedoch stets unverbindlich und zeitlich flexibel.
WeWork entwirft und baut physische und virtuelle Gemeinschaftsräume und Büroservices für Unternehmer und Unternehmen. Die über 100.000 Mitglieder des Unternehmens haben Zugang zu einer Krankenversicherung, einem internen sozialen Netzwerk, gesellschaftlichen Veranstaltungen und Workshops sowie einem jährlichen Sommerurlaub. WeWork beschäftigt über 5.000 Mitarbeiter an über 280 Standorten in 77 Städten in 23 Ländern, darunter Australien, Argentinien, Brasilien, Kanada, China, Kolumbien, Frankreich, Deutschland, Hongkong, Irland, Indien, Israel, Japan, Mexiko, Niederlande, Peru, Singapur, Südkorea, Spanien und Vereinigtes Königreich.
Coworking ist eine Entwicklung im Bereich „neue Arbeitsformen“. Freiberufler, Kreative, kleinere Startups oder digitale Nomaden arbeiten dabei zugleich in meist größeren, offenen Räumen und können auf diese Weise voneinander profitieren. Sie können unabhängig voneinander agieren und in unterschiedlichen Firmen und Projekten aktiv sein, oder auch gemeinsam Projekte verwirklichen und Hilfe sowie neue Mitstreiter finden.
„Coworking Spaces“ stellen Arbeitsplätze und Infrastruktur (Netzwerk, Drucker, Scanner, Fax, Telefon, Beamer, Besprechungsräume) zeitlich befristet zur Verfügung und ermöglichen die Bildung einer Gemeinschaft („Community“), welche mittels gemeinsamer Veranstaltungen, Workshops und weiterer Aktivitäten gestärkt werden kann. Dabei bleibt die Nutzung jedoch stets unverbindlich und zeitlich flexibel.












